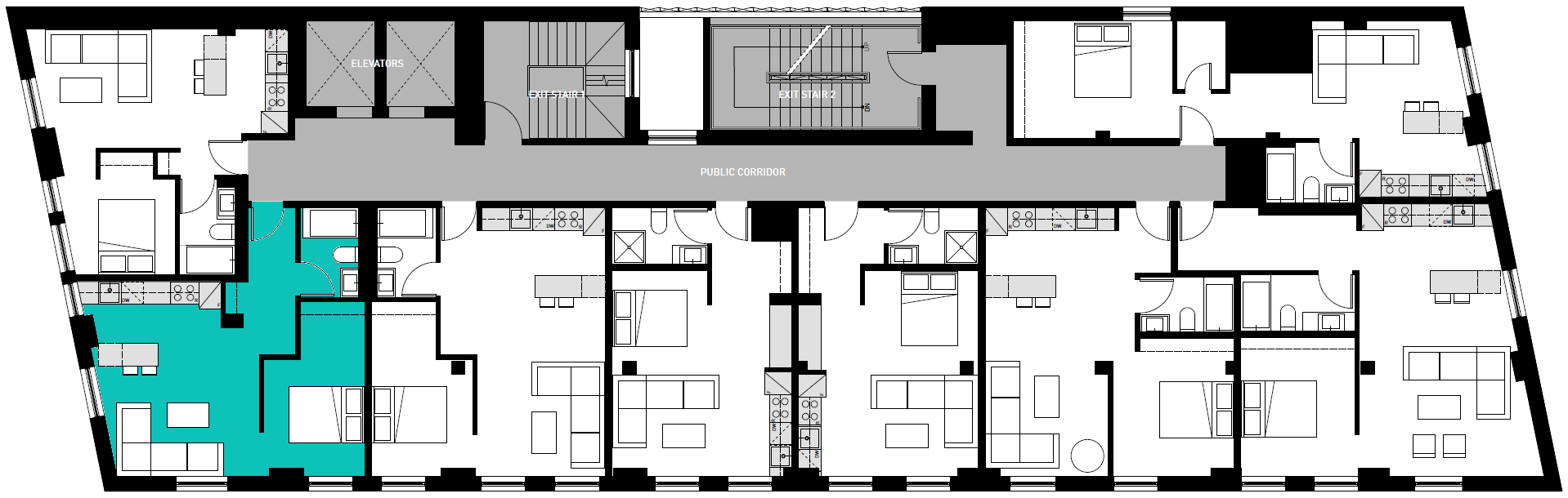
1 Bed | 1 Bath
|
Suite Details
Utilities Included
LEASING AGENT - Danil Bielov & Armenui Zeinalian |
|
Photos are samples only. Suite may not be exactly as shown. Please contact the Resident Manager to schedule a viewing.
AVAILABLE UNITS:MAY:
|
|||||||||














