Home Contact Sitemap login Checkout





sunrexca.shoutcms.net
  • Home
  • Book a Viewing - 233 Kennedy St
  • Find an Apartment
  • Tenant Insurance
  • Forms
    • Forms
    • Rental Application
  • Living with Pets
  • Request Rent Receipts
  • Tenants
    • Tenants
    • Coinamatic Locations
  • Neighbourhoods
    • Neighbourhoods
    • Winnipeg Central
    • Winnipeg North
    • Winnipeg North East
    • Winnipeg South East
    • Winnipeg South West
    • Winnipeg West
  • All Properties
  • Contact Us
Print This Page

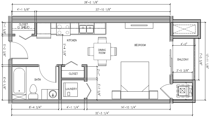
Studio | 1 Bath
(Layout D1)

Click Layout to view a Detailed Spec Sheet

Suite Details

       Fridge

      Stove

       Dishwasher

       Microwave

       Private Balcony/Patio

       In-Suite Laundry


Utilities Included

       Water

       Air Conditioning


building manager - Maybelle

      431-688-1754

     NotreTerrace@sunrex.ca




Photos are samples only. Suite may not be exactly as shown. Please contact the Resident Manager to schedule a viewing.


AVAILABLE UNITS:

JANUARY:

408
JANUARY 1st
$1,325 APPLY NOW





© 2025 Sunrex Management LTD. All rights reserved.